取得物件
シティタワー堀江
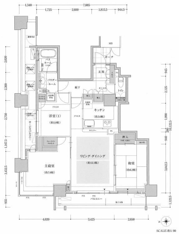
| 敷地面積 | ㎡ | 延床面積 | ㎡ | 専有面積 | 80.77㎡ |
|---|---|---|---|---|---|
| 種別 | 共同住宅 | 建物構造 | 鉄筋コンクリート造(RC) | 駐車場 | 有 |
| 築年月 | 2005年11月 | ||||
| 所在地 | 大阪市西区北堀江1丁目 | ||||
| 沿線交通 |
大阪メトロ四ツ橋線「四ツ橋駅」徒歩4分、大阪メトロ長堀鶴見緑地線「西大橋駅」徒歩3分、大阪メトロ御堂筋線「心斎橋駅」徒歩8分
|
||||
| 備考 | 地下1階付32階建 間取り:3LDK 方角: 北西 |
||||
